MẪU NỘI THẤT CĂN HỘ - PHÒNG TRỌ 25M2
MẪU NỘI THẤT CĂN HỘ - PHÒNG TRỌ 25M2
MẪU NỘI THẤT CĂN HỘ - PHÒNG TRỌ 25M2
Kiến trúc
Nhà Lô Phố
Biệt Thự
Nội thất
Căn Hộ
Nhà Lô Phố - Interiors
Biệt Thự - Interiors
Nhà Hàng - Cafe - Restaurant
Văn Phòng - Office
Spa - Thẩm Mỹ Viện -Nails
Cửa hàng - Shop
Tư vấn phong thủy
Phong Thủy Cải Mệnh
Phong Thủy Nhà Ở
Báo giá
Quy trình bảo hành
Quy trình bảo hành: NỘI THẤT
Quy trình bảo hành thi công: CẢI TẠO
Quy trình bảo hành: NHÀ XÂY MỚI
Chi tiết vật liệu
Chi tiết vật liệu sử dụng công trình
Báo Giá
BÁO GIÁ THIẾT KẾ KIẾN TRUC VÀ NỘI THẤT
Báo Giá Thi Công Hoàn Thiện
BÁO GIÁ THIẾT KẾ NHÀ Ở (KIẾN TRÚC VÀ NỘI THẤT)
Quy Trình Làm Việc
QUY TRÌNH LÀM VIỆC TẠI KIẾN TRÚC LÀM VIỆC
Quy Trình Thiết Kế
Quy Trình Thiết Kế Nội Thất
Quy Trình Thiết Kế Kiến Trúc
Quy Trình Thi Công
Quy Trình Thi Công Phần Thô
Quy Trình Thi Công Hoàn Thiện
Quy Trình Thi Công - Hoàn Thiện Nội Thất
Dự án
Nhà phố Thực Tế
Nội thất Tham Khảo
Cửa hàng thực tế
Kiến Trúc Tham Khảo
Mẹo hay
Kiến Thức
Cẩm Nang Xây Dựng
Tham Khảo Các Mẫu Thiết Kế Đẹp
Tuyển dụng
Liên hệ
Trang chủ
Dự án
Nội thất Tham Khảo
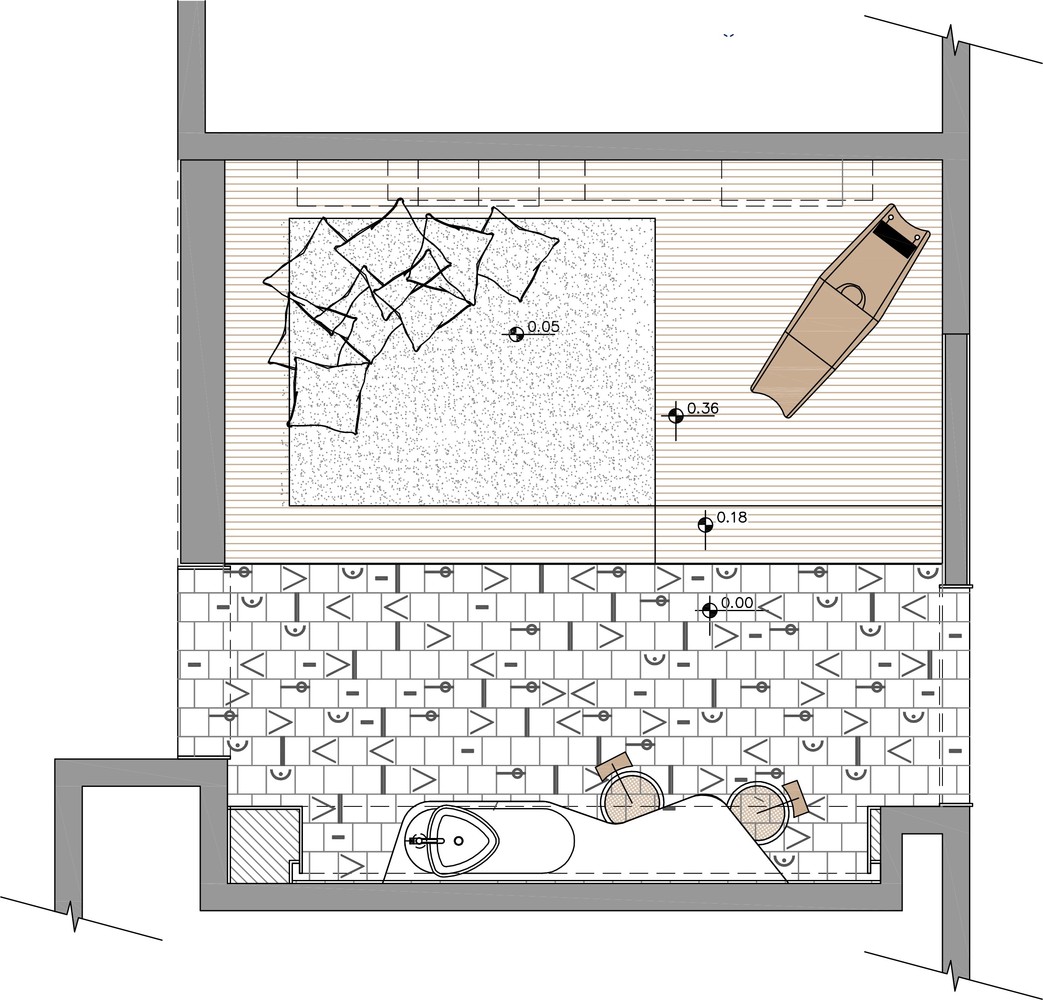
Mẫu Nội Thất Căn Hộ 25m2 - CH1
Mẫu Nội Thất Căn Hộ 25m2 - CH1
Bài viết khác
Mẫu Nội thất Nhà Ở Độc Đáo - BT3
SPA | 155 Lê Duẩn
SPA | 11 Hàng Bông
Mẫu Nội Thất Căn Hộ 156m2 - CH4
Mẫu Nội Thất Căn Hộ 60m2 - CH2
Mẫu Nội Thất Căn Hộ 63m2 - CH5
Mẫu Nội Thất Căn Hộ 130m2 - CH6
Mẫu Nội Thất Căn Hộ 65m2 - CH7
Mẫu Nội Thất Căn Hộ 62m2 - CH8
Cải Tạo Nhà Cổ 15 Năm Ở Sài Gòn
Mẫu Nội Thất Biệt Thự Vườn - BT1
Mẫu Nội Thất Căn Hộ 86m2 - CH9
Mẫu Nội Thất Căn Hộ 76m2 - CH10
Mẫu Nội thất Nhà Phố Q5 - NP1
Mẫu Nội Thất Căn Hộ 69m2 - CH11
Mẫu Nội Thất Căn Hộ 100m2 - CH12
Mẫu Nội Thất CH Penhouse - PH1
Mẫu Nội Thất Nhà Ở Tối Giản - BT2
Mẫu Nội Thất Căn Hộ 137m2 - CH13
Mẫu Nội Thất Căn Hộ 72m2 - CH14
ĐỐI TÁC CỦA CHÚNG TÔI
© 2018 KIEN TRUC IHOME . ALL RIGHTS RESERVED.
Đang online:
22
| Tổng truy cập:
2533639
Facebook chat