![]()












CHI TIẾT CÔNG TRÌNH:
- Năm: 2019
- Địa Chỉ: Hồ Chí Minh
- Diện tích: 63m2
- Phong cách: Hiện đại
- Kiến trúc sư: Block Architects
---------------------------------------------
.jpg)
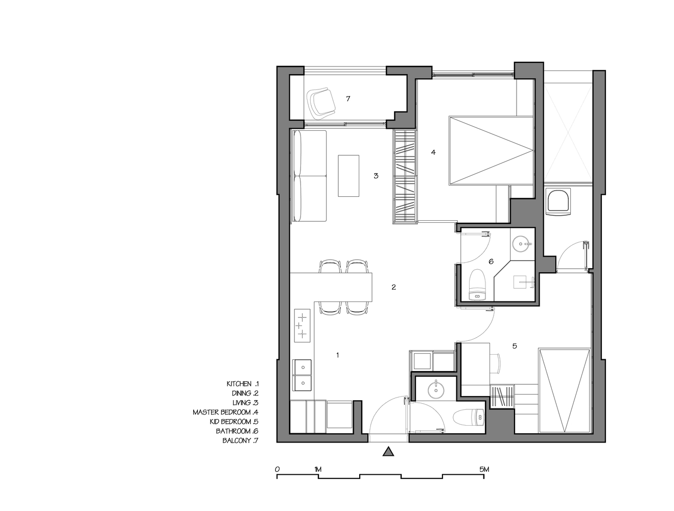
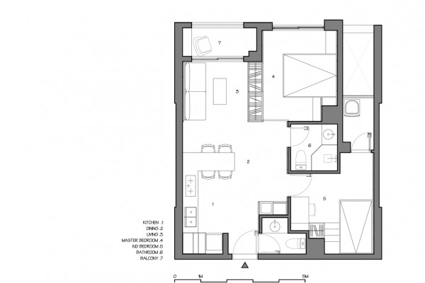
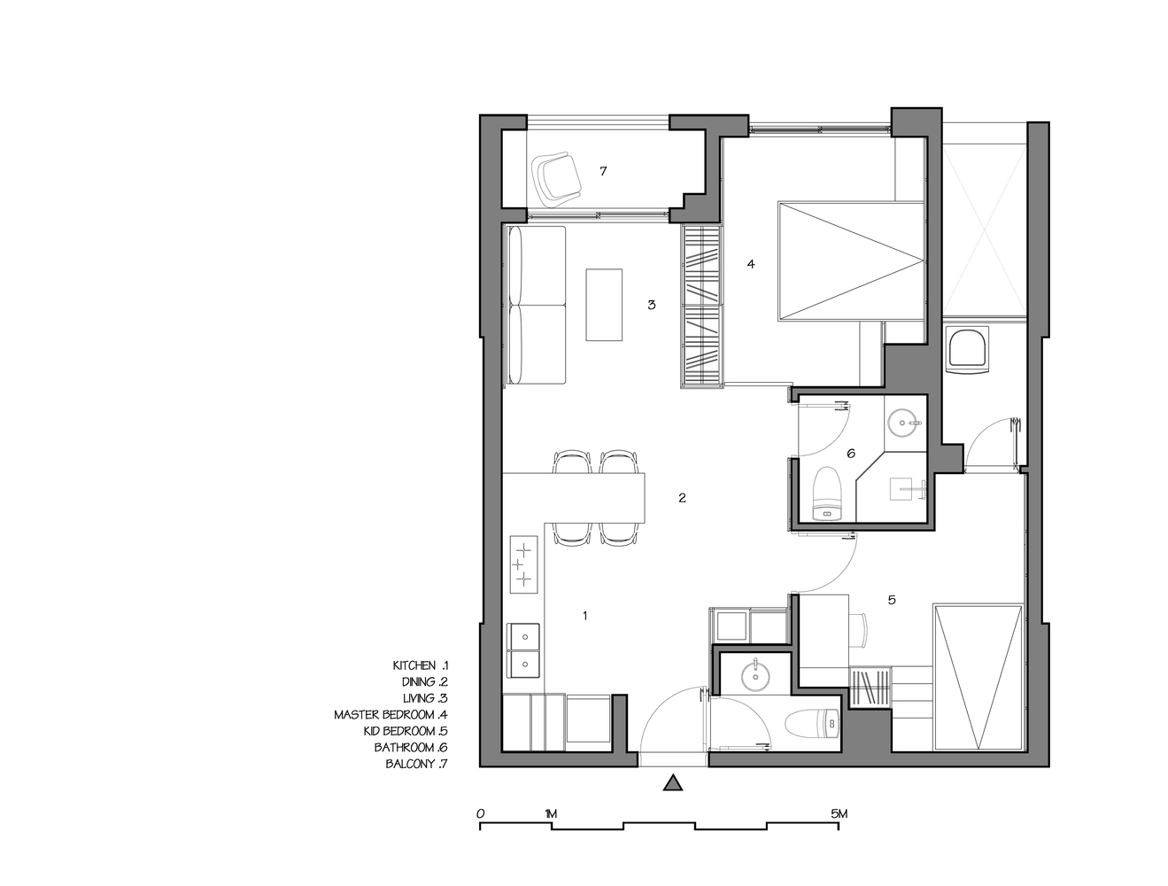
Đối với hầu hết chúng ta, căn hộ có khả năng liên tưởng đến những chiếc hộp hạn chế và nhàm chán khi chúng ta bước vào đó. Hơn nữa, những bức tường ngăn xung quanh các khu vực chức năng vô tình khiến không gian thêm ngột ngạt và rời rạc, để tạo không gian tươi mới và phong cách hơn, một số bức tường đã được dỡ bỏ và thay thế bằng những mái vòm.
.jpg)


Những mái vòm đan chéo vào nhau để làm không gian trống nên cả khu vừa trở nên tách biệt hẳn ra nhưng vẫn có sự liên kết chặt chẽ. Giờ đây ranh giới giữa tường và trần nhà đã biến mất, không gian dựa trên các mái vòm rất có ý nghĩa và thú vị, giúp xóa bỏ hình ảnh buồn tẻ thường thấy của những căn hộ nhỏ khiêm tốn.
.jpg)

.jpg)

Nguồn: archdaily. com
Bạn có muốn sở hữu 1 căn hộ như thế này không?
Hãy liên hệ với chúng tôi để được tư vấn tận tình và miễn phí nhé!!!
KIẾN TRÚC LÀNG VIỆT
Địa chỉ: 36 Đường B6, Phường 12, Quận Tân Bình, Tp. Hồ Chí Minh
Điện thoại: 0966.899.982 - 0944.444.011
Website: kientruclangviet.com
Email: kientruclangviet@gmail.com
-3302.png)