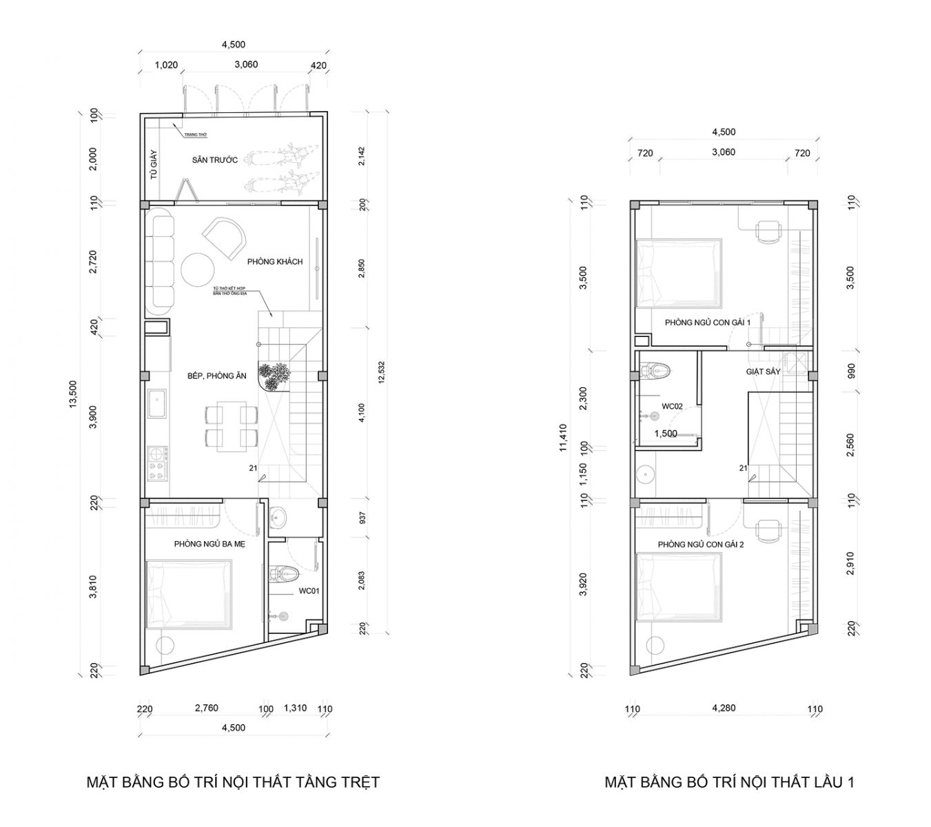
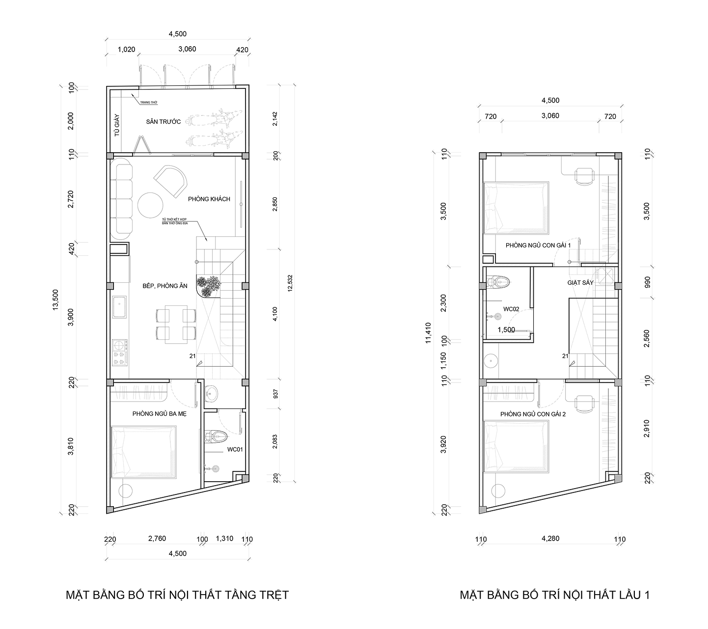
DIỆN TÍCH: 4.5m x 13.5m
QUY MÔ: NHÀ PHỐ HẸP - 1 TRỆT 1 LẦU
ĐƠN VỊ THIẾT KẾ: KIẾN TRÚC LÀNG VIỆT
Sở hữu một mảnh đất tại thành phố đã khó, sở hữu một mảnh đất vuông vức hoàn hảo lại càng khó hơn. Rất nhiều gia chủ khi tìm đến Kiến Trúc Làng Việt mang theo chung một nỗi lo trăn trở: "Đất nhà anh/chị bị xéo ở phần đuôi và tóp hậu, lại là dạng nhà ống hẹp ngang, làm sao để thiết kế cho vuông vức, không bị bí bách mà vẫn đủ 3 phòng ngủ?"
Sự thật là, trong ngôn ngữ của kiến trúc sư, không có mảnh đất nào là "xấu", chỉ có những giải pháp chưa đủ tinh tế.
Hôm nay, chúng tôi mời bạn tham quan một case study thực tế: Tổ ấm của gia đình chị Tuyển. Dựa trên hiện trạng lô đất 4.5m x 13.5m với phần đuôi bị vát chéo, đội ngũ Kiến Trúc Làng Việt đã phác thảo nên một kịch bản không gian xuất sắc. Không chỉ giải quyết trọn vẹn bài toán công năng với phòng ngủ trệt tiện lợi, ngôi nhà còn khoác lên mình một vẻ đẹp ấm áp, mềm mại, phá vỡ hoàn toàn định kiến về sự ngột ngạt của nhà ống đô thị.


1. Giải Mã Mặt Bằng:
Thách thức lớn nhất của dự án này nằm ở mặt bằng tầng trệt: Chiều dài nhà không quá sâu, lại bị vát xéo một góc lớn ở phía cuối nhà. Thêm vào đó, gia chủ yêu cầu phải có một phòng ngủ ở tầng trệt dành cho ba mẹ lớn tuổi để hạn chế leo cầu thang.





Giải pháp của Kiến Trúc Làng Việt:
Thay vì để góc xéo làm biến dạng không gian sinh hoạt chính, chúng tôi dồn nhược điểm này vào khu vực riêng tư phía cuối nhà (Phòng ngủ ba mẹ).
Kết quả là gì? Phần diện tích dành cho giường ngủ được "nắn" lại vuông vức hoàn toàn. Không gian sinh hoạt chung phía ngoài (Khách - Bếp) cũng giữ được hình khối chữ nhật hoàn hảo, tạo cảm giác rộng rãi và chuẩn phong thủy.
2. Giếng Trời & Cầu Thang Xanh
Nếu góc xéo đã được giải quyết, bài toán tiếp theo của nhà ống là: Ánh sáng.
Trong dự án này, chúng tôi không đặt cầu thang ép sát vào tường một cách nhàm chán. Cầu thang và giếng trời được đặt ở vị trí trung tâm, đóng vai trò như "lá phổi" luân chuyển không khí và ánh sáng cho toàn bộ chiều dài 13.5m của ngôi nhà.


Hiệu ứng thị giác và công năng:
-
Gầm cầu thang được tận dụng làm tủ lưu trữ vật dụng bếp. Giúp tăng không gian cho khu vực sinh hoạt.
-
Ánh sáng tự nhiên từ trên mái dội thẳng xuống khu vực bếp, xóa tan hoàn toàn khái niệm "khu bếp tối tăm, ám mùi" của nhà phố truyền thống. Mọi bữa ăn gia đình đều được diễn ra dưới ánh sáng tự nhiên đầy sinh khí.
3. Ngôn Ngữ Thẩm Mỹ: Sự Mềm Mại Của Gỗ Và Những Đường Vòm
Bỏ qua những đường nét sắc lạnh, góc cạnh thường thấy của phong cách hiện đại, ngôi nhà này là một bản hòa ca của sự vỗ về và ấm áp.


Nội thất nhà phố phong cách Japandi với gỗ sồi sáng và hệ cửa vòm cong mềm mại.
Chất liệu và Hình khối:
-
Vật liệu chủ đạo: Xuyên suốt không gian từ phòng khách, bếp đến phòng ngủ là sắc vàng ươm ấm áp của gỗ sồi tự nhiên, kết hợp cùng nền tường trắng kem. Bảng màu này giúp phản xạ ánh sáng tối đa, khiến ngôi nhà lúc nào cũng như đang bừng nắng.
-
Chi tiết "đắt giá": Hãy chú ý đến những ô cửa, vách ngăn và gương soi. Chúng tôi sử dụng rất nhiều đường vòm cong (Arches). Những đường cong này có tác dụng trung hòa sự cứng nhắc của kết cấu nhà ống, dẫn dắt tầm nhìn một cách trơn tru và mang lại cảm giác an yên, thư thái tuyệt đối cho người ở.
Xem thêm thiết kế đường cong tương tự: Nội thất Nhà phố - Chị Thu - Tân Bình
4. Tối Ưu Lầu 1:
Bước lên Lầu 1 là không gian dành cho thế hệ trẻ với 2 phòng ngủ cho hai cô con gái.

Bố trí công năng lầu 1 nhà phố với 2 phòng ngủ và khu vực giặt sấy thông minh.






Điểm sáng tinh tế nhất trên mặt bằng lầu 1 không chỉ nằm ở hai phòng ngủ được trang bị hệ tủ kịch trần gọn gàng, mà nằm ở Khu vực Giặt Sấy.
Thay vì đẩy máy giặt lên sân thượng chót vót hoặc nhét vào góc vệ sinh chật hẹp, chúng tôi bố trí một khu vực giặt sấy riêng biệt ngay tại sảnh thang lầu 1, sát cạnh giếng trời.
-
Sự tiện lợi: Các thành viên thay đồ xong có thể bỏ ngay vào máy giặt.
-
Sự thông thoáng: Tận dụng triệt để luồng gió tự nhiên từ giếng trời để phơi đồ hoặc thoát hơi cho máy sấy, đảm bảo quần áo luôn thơm tho mà không làm mất mỹ quan của mặt tiền nhà.
Xem thêm phong cách thiết kế nhà phố Japani tương tự: Nội Thất Nhà Phố - Cô Sen - Quận 9
Dự án của gia đình chị Tuyển là một minh chứng rõ ràng nhất cho triết lý thiết kế của Kiến Trúc Làng Việt: Kiến trúc sinh ra là để phục vụ con người, nắn nót lại những khiếm khuyết của tự nhiên để tạo ra một tổ ấm hoàn mỹ.
Một lô đất vát xéo không làm khó được tư duy tổ chức mặt bằng. Một ngôi nhà ống hẹp không thể ngăn cản ánh sáng mặt trời tràn vào bếp. Bằng việc kết hợp khéo léo giữa công năng thông minh và vật liệu ấm áp, chúng tôi đã biến một khối bê tông đô thị thành một không gian mang đậm tính "chữa lành", nơi mỗi buổi chiều về là một sự tận hưởng.
Nếu bạn đang sở hữu một lô đất có hình dáng đặc thù, hoặc đang tìm kiếm một giải pháp để ngôi nhà của mình bừng sáng, hãy để bản vẽ của chúng tôi cất lời.
Hãy liên hệ với chúng tôi để được tư vấn tận tình và miễn phí nhé!!!
KIẾN TRÚC LÀNG VIỆT
Địa chỉ: 36 Đường B6, Phường Bảy Hiền, Tp. Hồ Chí Minh
Điện thoại: 0966.899.982 - 0944.444.011
Website: kientruclangviet.com
Email: kientruclangviet@gmail.com